Krtsanisi Resort Residence

Gürcistan'da başkent Tiflis'in Krtsanisi bölgesinde bir yerleşim merkezinde rekabetçi fiyatlarla satılık daireler ve dubleksler.
money
Fiyat başlangıç
556,876 cny

Konum

location
Krtsanisi

Ödeme yöntemi

cards
30%
Peşinat
24
Taksit

Teslimat süresi

calender
01.03.2027

Tapu

calender
Kat Mülkiyeti

Proje Bilgileri

Gürcistan'ın başkenti Tiflis'in Krtsanisi bölgesinde konut daireleri ve dubleksler sunan bir tatil köyü. Harika bir atmosferin ve çevredeki yeşil manzaraların yanı sıra dağ ve nehir manzarasının keyfini çıkarabilirsiniz. Proje sizi seçkin bir yaşam tarzını deneyimlemeye davet ediyor ve satışa sunulan daire ve villaların fiyatları aracılığıyla mükemmel yatırım fırsatları sunuyor.

Bu tatil köyü projesi, Gürcistan'ın en seçkin gayrimenkul yatırım alanlarında yer alan çeşitli seçeneklere sahip daireler ve satılık dubleksler sunmaktadır. Kompleksin toplam alanı 200.000 metrekaredir ve her biri 6 katlı 35 binaya dağılmış Tiflis'te satılık 1.500 daire ve çatı katı içerir. Daire tipleri stüdyo 1+1'den 4+1'e kadar değişmekte olup, büyüklükleri 52 ila 200 metrekare arasında değişmektedir. 4+1 tipindeki dubleksler 384 metrekareden başlayıp 558 metrekareye kadar çıkmaktadır.

Proje, yüksek kaliteli malzemelerin estetikle birleştirilmesiyle oluşturulan daireler için konforlu ve ferah iç tasarımlarda arzu ettiğiniz her şeyi size sağlıyor. Proje, modern mimarisi, lüks kaplamaları ve konforunuza adanmış geniş alanları ile sizi Gürcistan'da hayallerinizi yaşamaya davet ediyor.

Sosyal hizmetler :

  • 7/24 güvenlik ve gözetleme kameraları
  • Sauna - açık havuz - spor salonu ve sağlık merkezi
  • Bahçeler, yeşil alanlar, yürüyüş yolları ve ata binmek için ayrılmış bir alan
  • Misafir karşılama alanı
  • Akıllı ev sistemi
  • Çocuk oyun alanları
  • Park yerleri
  • Basketbol, futbol ve tenis kortları
  • Bowling salonu ve küçük sinema

Konum avantajları :

Kompleks, proje olarak stratejik bir konuma sahiptir:

  • Otobüs durağına 3 dakika uzaklıktadır
  • En yakın otoyol 5 dakika uzaklıktadır
  • Parklara ve nehre sadece 5 dakika mesafede
  • Tiflis Uluslararası Havalimanı'na 20 dakika
  • Hastaneler, okullar, üniversiteler ve marketler 10 dakika uzaklıktadır.

Konum

Okul
Okul
3 Dakika
Alışveriş merkezi
Alışveriş merkezi
10 Dakika
Oyun Alanı
Oyun Alanı
3 Dakika
Üniversite
Üniversite
5 Dakika
Yeşil alanlar
Yeşil alanlar
1 Dakika
hastane
hastane
4 Dakika
Otobüs Terminali
Otobüs Terminali
3 Dakika
Havalimanı
Havalimanı
20 Dakika
Ana Cadde
Ana Cadde
5 Dakika

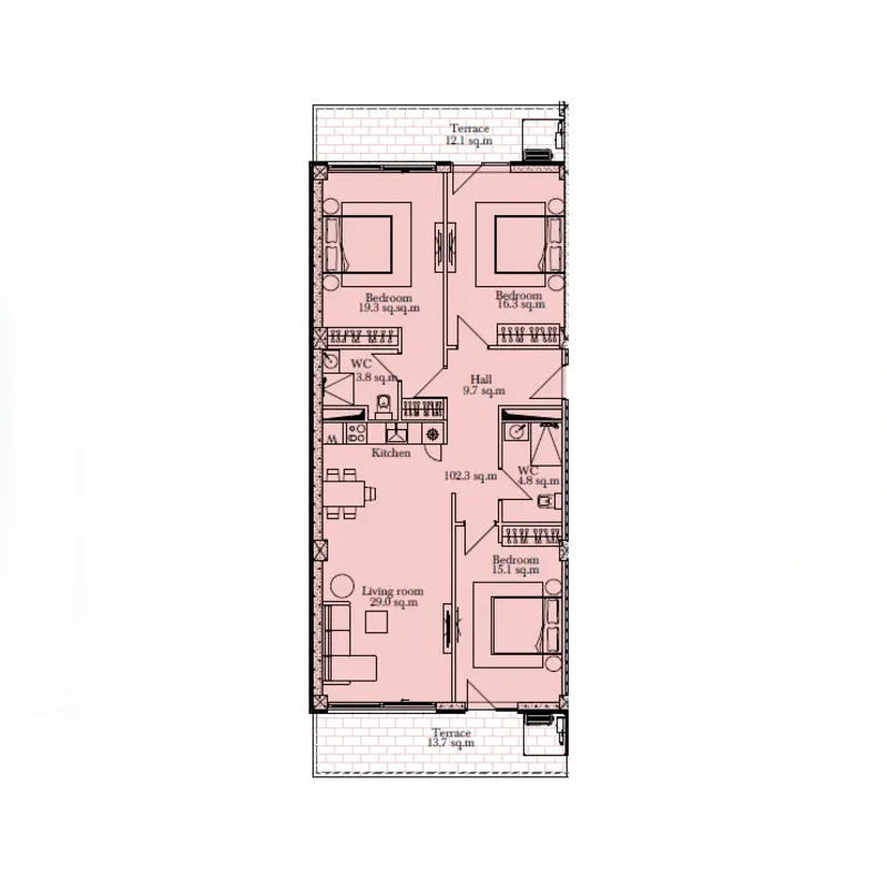
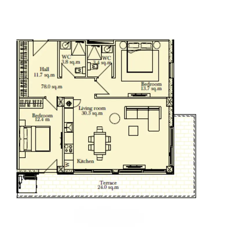
Kat Planları

Odalar ve Fiyatlar


Planlar Odalar Salonlar Alan Fiyat Kat Planları
Normal Daire
1 1 49 - 80 m² 769,602 - 1,080,789 cny floor
Normal Daire
2 1 58 - 123 m² 1,069,896 - 1,891,469 cny floor
Normal Daire
3 1 110 - 152 m² 1,806,108 - 2,805,024 cny floor
Normal Daire
4 1 169 - 170 m² 3,115,285 - 3,141,200 cny -
Penthouse
3 1 263 - 270 m² 5,246,676 - 5,390,202 cny floor
Normal Daire
1 0 44 - 72 m² 556,876 - 969,940 cny -

not:: Bu fiyatlara indirimler dahil değildir 3%
Son fiyat güncellemesi 06-11-2025
Bu proje neden

Gürcistan'daki emlak piyasası, bölgede istikrar ve sürekli büyüme ile karakterize edilen birkaç piyasadan biridir. Diğer ülkelere kıyasla nispeten düşük maliyetler sayesinde yatırımcılar yıllık %10-15 arasında değişen yüksek getirilerden faydalanabilmektedir. Ayrıca, Gürcistan'daki mülklerin değeri sürekli artmakta ve gelecekteki gelir artışı için iyi fırsatlar sunmaktadır. Bu nedenle, Gürcistan'da gayrimenkule yatırım yapmak, daha yüksek kâr elde etmek ve yatırımlarını güvence altına almak isteyen yatırımcılar için ideal bir seçenek olarak kabul edilmektedir.

Gürcistan'da Gayrimenkul Yatırımının Avantajları

Gürcistan, kendisini gayrimenkul yatırımı için cazip bir yer haline getiren çeşitli avantajlara sahiptir:

  1. Stratejik Konum : Gürcistan'ın Avrupa ve Asya arasında yer alması onu hayati bir bağlantı noktası haline getirmektedir. Bu özellik, ürünlerin ithalat ve ihracatını kolaylaştırmanın yanı sıra çeşitli ülkelerden turist ve yatırımcıların ilgisini çekmektedir.
  2. Çarpıcı Doğa : Gürcistan'daki çeşitli doğa, turistleri ve yatırımcıları çekmede önemli bir rol oynamaktadır, çünkü ülke birçok güzel turistik mekana ve nefes kesici doğal alanlara ev sahipliği yapmaktadır.
  3. İdari Prosedürlerin Kolaylığı : Gürcistan'daki idari sistem, yatırım süreçlerini kolaylaştıran ve bürokratik engelleri azaltan basitlik ve şeffaflık ile karakterize edilmektedir.
  4. Gürcistan'a Artan Arap İlgisi : Son yıllarda birçok Arap ülkesinin Gürcistan ile diplomatik ilişkiler kurması ve büyükelçilikler açması, ticaret ve ekonomik alışverişe yönelik artan ilgiyi yansıtmaktadır.

You can 〈 contact us〉and speak with one of our real estate consultants at Mbany Real Estate Company to get more information about the property and other Turkeya properties

Proje Hizmetleri

Yürüyüş yerleri
Yürüyüş yerleri
Futbol
Futbol
Akıllı Ev
Akıllı Ev
Güvenlik
Güvenlik
Sauna
Sauna
Güvenlik Kameraları
Güvenlik Kameraları
Oyun Alanı
Oyun Alanı
Sinema
Sinema
Yeşil alanlar
Yeşil alanlar
Açık Havuz
Açık Havuz
Otopark
Otopark
Spor salonu
Spor salonu
Basketbol
Basketbol
Resepsiyon
Resepsiyon
Buhar Odası
Buhar Odası
Krtsanisi Resort Residence

Alan detayları

Nüfus

150,000

Cinsiyet Oranı
51%
Erkek
49%
Kadın
Sınıf

A

Fiyat Değişimi

1 Yıl

10%

3 Yıl

55%

5 Yıl

125%

Benzer Projeler

cover
Halic'e Nazir
İstanbul'da satılık taşınmaya hazır dairelerden Haliç Körfezi'nin muhteşem manzarasının keyfini çıkarın.
Satıldı
Ödeme yöntemi
Peşin
1,247,865 cny
Halic'e Nazir
İstanbul'da satılık taşınmaya hazır dairelerden Haliç Körfezi'nin muhteşem manzarasının keyfini çıkarın.
location Beyoğlu
time Hazır
cover
Hayat City Mahmutbey
Bağcılar'da farklı bir gayrimenkul projesi içinde satılık daireler aracılığıyla mükemmel yatırım fırsatları
Peşinat
50
%
Taksit
12
Ay
1,445,228 cny
Hayat City Mahmutbey
Bağcılar'da farklı bir gayrimenkul projesi içinde satılık daireler aracılığıyla mükemmel yatırım fırsatları
location Bağcılar
time 31.12.2025
Blok Sayısı :
35
Daire Sayısı :
1500
Kat Sayısı :
6
Alan :
200,000 m2
Manzara :
Orman, Şehir
KDV :
Muafiyet
Tapu masrafı :
1%
Tapu Türü :
Kat Mülkiyeti
Gayrimenkul ikameti için geçerli :
Evet
WhatsApp üzerinden bize ulaşın
Sizi arayalım
Whatsapp
Arama