Tourist-commercial land with a license for sale in Arnavutkoy, in Baklalı | L222

Land for sale in Baklalı, Arnavutkoy with an area of 1745 square meters.
money 787.61 sar / m2

Location

location
Arnavutköy

Payment Method

cards
Cash

Land Information

L222 - 

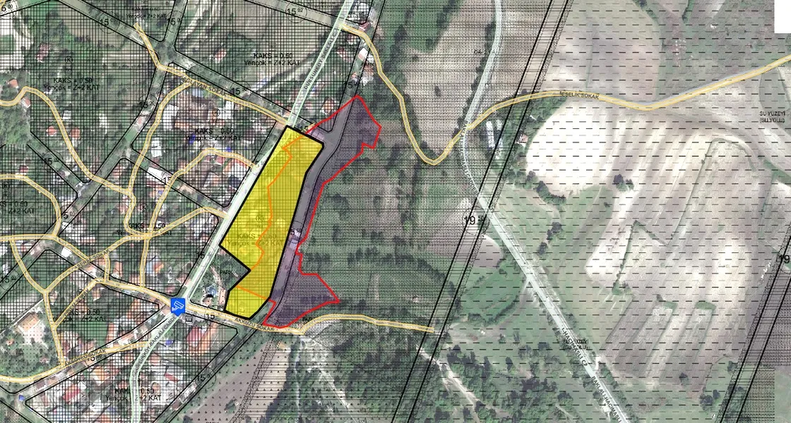
For sale, a designated land for development with a tourist-commercial license, with an area of 1745 square meters, distinguished by its direct location on the new Istanbul Canal in the Arnavutkoy area, specifically in Baklalı. After the designation, it will remain as one piece.

Location :

  • Directly on the New Istanbul Channel
  • 6 kilometers away from the new Istanbul airport
  • 1.25 kilometers away from the main road D020
  • A tourist commercial area with ready infrastructure
  • Just 500 meters away from the Toki project
  • 3.5 kilometers away from the new city of Yeni Sahir
  • The land is surrounded by all services, including markets, schools, transportation, and health services.

Additional details of the land :

  • City : Istanbul
  • Region : Arnavutkoy
  • District : Baklalı
  • Area : 1745square meters
  • Land type : Tourist - Commercial
  • Sort type : fully sorted
  • Construction license : licensable
  • Building percentage : 50 %
  • Number of building floors : 3 Floor

Infrastructure details of the area :

  • Electricity :  Serviced 
  • Natural gas :  Serviced
  • Water :  Serviced
  • Asphalt Street : Available

Location

Istanbul Airport
Istanbul Airport
6 KM
Main Street
Main Street
1.25 KM
Istanbul Canal
Istanbul Canal
0 KM
Why this land
  • The land is located in the Arnavutkoy region, and it is one of the areas that has gained the most attention of the Turkish government. The new Istanbul airport has been completed in this region, and the new Istanbul Canal project is being completed within this region with the rest of the regions. Arnavutkoy also contains many freshwater lakes, including Lake Durso, which feeds a third of Istanbul's population with fresh water, is considered an area of a rural and modern nature. This area also contains a lot of untapped land that is offered for sale at excellent prices when compared to market prices.
  • This land is within an area with future growth because of the future projects it is witnessing. Its presence near the Istanbul Canal project makes investing in it safe and profitable without any risk, because simply the area in the future will witness a construction leap and real estate projects in the event of the completion of the canal project. Investment advantage.
  • Investing in lands in Istanbul, specifically in this region now, at the right prices, and he is aware that the region is witnessing giant projects that strengthen the chances of life in it. He must buy at such prices and at this time and not at another time, because simply the more time is delayed, the greater the demand for it, with the increase in prices in the future.

You can 〈 contact us〉and speak with one of our real estate consultants at Mbany Real Estate Company to get more information about the property and other Turkeya properties

Video

Tourist-commercial land with a license for sale in Arnavutkoy, in Baklalı | L222

Area Details

Population

270,549

Sex Ratio
51%
Male
49%
Female
Rate

A+

Price Change

1 year

188%

3 Years

344%

5 Years

487%

Total Price :
1,374,379.45 sar
Location :
Arnavutköy , Baklalı
Construction Percentage :
50 %
Land Type :
Agricultural
Construction License :
Licensable
Land License:
Commercial, Tourist
Area :
1,745 m2
Number of Floors :
3
Contact us via WhatsApp
Let Us Call You
Whatsapp
Calling